phone

+48 575 883 004 / +48 732 186 259

pon. – pt.  8:00-20:00

Menu

„Twój dom w paczce” Z389

Cena za zestaw bez montażu:

120 540 zł brutto 23%

98 000 zł netto

Prześlij zapytanie o projekt

Potrzebujesz więcej informacji?

+48 790 877 764 (pon. – pt. 8-20)

Czas dostawy dla domów z paczki od 3 tygodni

„Twój dom w paczce” Z389

Dom o powierzchni 47m2 z dachem 2-spadowym i jedną sypialnią.
Przewiń do pełnego opisu
Projekt zawiera:
  • Powierzchnia użytkowa / netto - 48,6 m²
  • Dom parterowy z dachem dwuspadowym
  • Minimalne wymiary działki - 13,62 x 16,32 m
  • Pakiet projektowy: projekt architektoniczno-budowlany, techniczny i wykonawczy oraz zalecenia montażowe;
  • Zestaw materiałów: pocięta i ponumerowana konstrukcja, łączniki konstrukcyjne, termoizolacje i uszczelnienia, płyty wykończeniowe oraz system tynkarski.

Opis

Z389 to propozycja niewielkiego, współczesnego domku w nieco nowoczesnym wydaniu. Jest to idealna propozycja zarówno na działkę letniskową jak i dom całoroczny. Biało-grafitową elewacje docenią osoby lubiące klasykę oraz proste rozwiązania.

Wnętrze to sypialnia z miejscem na pojemną szafę, łazienka w której zmieścimy zarówno wannę jak i pralkę oraz otwarta część dzienna. Salon oraz kuchnie z dużym przeszkleniem umieszczono od strony ogrodu gdzie w ciepłe i słoneczne dni możemy powiększyć przestrzeń o zadaszony taras. Natomiast w zimniejsze dni ogrzeje nas centralnie umieszczony kominek.

„Twój dom w paczce” Z389 „Twój dom w paczce” Z389

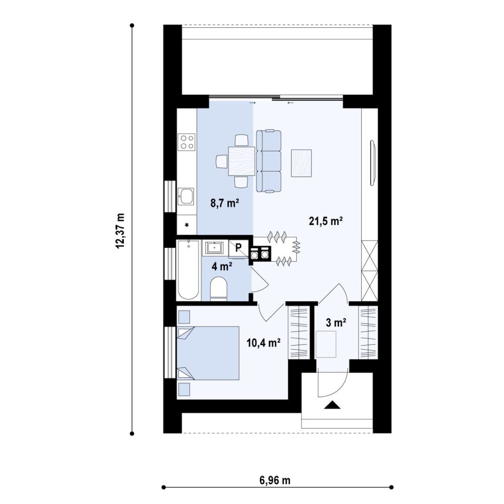
Rzuty i wymiary

 PARTER 47,6 m²

PARTER 47,6 m²

Sień
3,0 m²
Łazienka
4,0 m²
Pokój
10,4 m²
Salon
21,5 m²
Kuchnia
8,7 m²
Powierzchnia użytkowa / netto – 48,6 m²

Powierzchnia użytkowa / netto – 48,6 m²

Powierzchnia zabudowy
66,1 m²
Kubatura
177,73 m³
Wysokość domu
5.5 m
Kąt nachylenia dachu
35°
Powierzchnia dachu
197,22 m
Minimalne wymiary działki
13,62 x 16,32 m

Zawartość domu w paczce

Twój dom w paczce zawiera:

  • Pakiet projektowy– Projekt architektoniczno-budowlany, techniczny i wykonawczy oraz zalecenia wykonawcze, wsparcie zespołu specjalistów Eneroo Domy.
  • Materiały konstrukcyjne– Drewno lite C24 docięte i ponumerowane pod wymiar, STEICO LVL, płyta usztywniająca OSB3 15mm, zestaw wkrętów, załączy ciesielskich, zszywek i gwoździ, konsultacje techniczne on-line.
  • Termoizolacja– Płyty elewacyjne STEICO, płyty nakrokwiowe STEICO, izolacja wewnętrzna z włókien drzewnych STEICO
  • Uszczelnienia– Komplet membran i taśm uszczelniających STEICOmulti, hydroizolacja pod podwaliny.
  • Wykończenie– Kompletny system tynkarski Quick- Mix, komplet płyt do wykończenia wnętrz Fermacell

 

Czego nie zawiera Dom w Paczce Eneroo:

  • Fundamentu
  • Stolarki okiennej i drzwiowej
  • Instalacji
  • Pokrycia dachu
  • Brak schodów

Zamówienie i realizacja

„Twój dom w paczce” Z389

3 sposoby na realizację domu w paczce:

  • Dom do samodzielnego montażu- Najbardziej ekonomiczna opcja, konstrukcja docięta na wymiar, komplet materiałów budowlanych, opłytowanie i akcesoria, projekt konstrukcyjny, wytyczne montażowe i opieka specjalistów.
  • Twoja ekipa montażowa- Zaproś swoją ekipę montażową. Pełna kontrola nad procesem budowy przy wsparciu Zespołu Eneroo Domy.
  • Ekipa montażowa Eneroo- Skorzystaj z zaufanych ekip montażowych naszej firmy. 100% bezpieczeństwa.

Dom w Paczce Eneroo – stawiasz na własnych warunkach

Dopasuj sposób realizacji marzenia o domu do swoich preferencji. Jak to działa?

Krok 1

Wybierz interesujący Cię projekt domu. Złóż zamówienie. W pakiecie otrzymasz:

  • projekt architektoniczny
  • zoptymalizowany projekt konstrukcyjny
  • konstrukcja docięta na wymiar wraz ze złączami
  • komplet izolacji
  • płyty elewacyjny i nakrokwiowe
  • membrany i uszczelnienia budynku
  • niezbędne akcesoria
  • wytyczne montażowe

Krok 2

Wybierz preferowany sposób montażu Twojego domu Eneroo:

  • Samodzielny montaż — opcja ekonomiczna. W pakiecie otrzymasz wsparcie naszego specjalisty przed realizacją zlecenia oraz do 8 godzin konsultacji w trakcie montażu.
  • Montaż z własną ekipą — skorzystaj ze wsparcia firmy zewnętrznej. Specjalista Eneroo będzie czuwać nad poprawnością realizacji zlecenia (konsultacje zdalne i na żywo).
  • Montaż z ekipą Eneroo — współpracujemy z zespołem sprawdzonych fachowców, którzy znają proces montażu domów Eneroo. To gwarancja szybkiej i dokładnej realizacji zlecenia.

Krok 3

Przełóż swoje wizje na indywidualne wykończenie wnętrz. Ustaw wyszukane meble i po prostu zamieszkaj!

Zobacz inne projekty

Cena za zestaw bez montażu:

120 540 zł brutto 23%

98 000 zł netto

Prześlij zapytanie o projekt

Potrzebujesz więcej informacji?

+48 790 877 764 (pon. – pt. 8-20)

Czas dostawy dla domów z paczki od 3 tygodni

Formularz

Produkt:

„Twój dom w paczce” Z389

W magazynie

Co jeszcze możemy dla Ciebie zrobić?

  • Projekt indywidualny
  • Adaptacja projektu z technologii murowanej do technologii szkieletowej
  • Optymalizacja materiałowa/kosztowa Twojego projektu domu szkieletowego

Formularz

Wypełnij formularz

    Na ten numer telefonu zadzwoni nasz ekspert po szczegóły.
    Chcesz dołączyć załącznik/projekt do wiadomości?
    Dodaj plik z komputera
    Rozmiar pliku max 20MB.
    Formaty: .pdf, .png, .jpg, .doc
    0
      0
      Twój koszyk
      Twój koszyk jest pustyWróć do sklepu